陵宇犀地-100m²-简美装修效果图-洛阳业之峰装饰
石艳景 >
陵宇犀地-100m²-简美 —— 美式
10
案例户型:二居
设计风格:美式
案例面积:90-120平米
本案设计说明:
全部
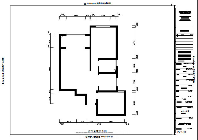
原始平面图
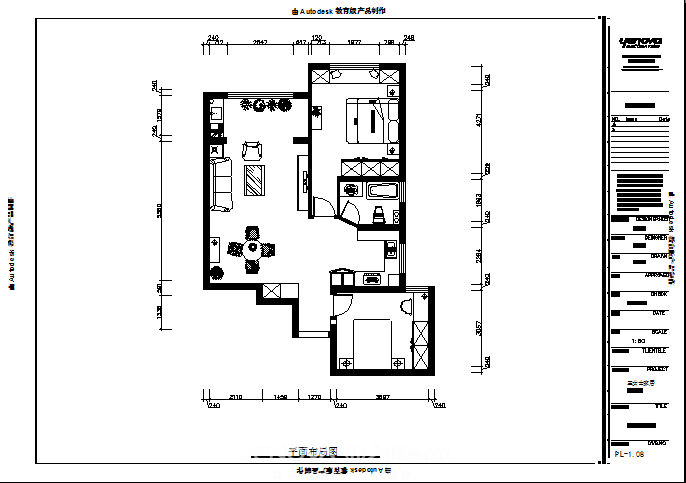
布局图
客厅
客厅
客厅
客厅
客厅
客厅
客厅
客厅
本地服务
装修案例
选设计师
附近工地
售后保障
品牌力量
环保体系
工程材料
九零承诺
关于业之峰
返回首页
在线报名 独享官网礼包
立即预约